Aller à :

  • Aller à la recherche
  • Aller au menu principal
  • Aller au contenu
0
  • Accueil
  • Estimer
  • Acheter
  • Louer
  • VENTE INTERACTIVE
  • GESTION LOCATIVE
  • Notre agence
  • Actualités
  • Contact
0
VotreRecherche
Dans un rayon de
Budget
entre et €
Min €
Max €
  1. Agence immobilière à Courbevoie, La Garenne-Colombes
  2. Vente
  3. Hauts de seine
  4. La garenne colombes
  5. Appartement
  6. T3
  7. F3 avec terrasse cave
Vendu
Réf : VCG231101
Appartement
F3 avec terrasse , cave
Nombre de pièces 3
Nombre de chambres 2
Salle d'eau 1
Vidéo
Le bien en vidéo
Visite Virtuelle

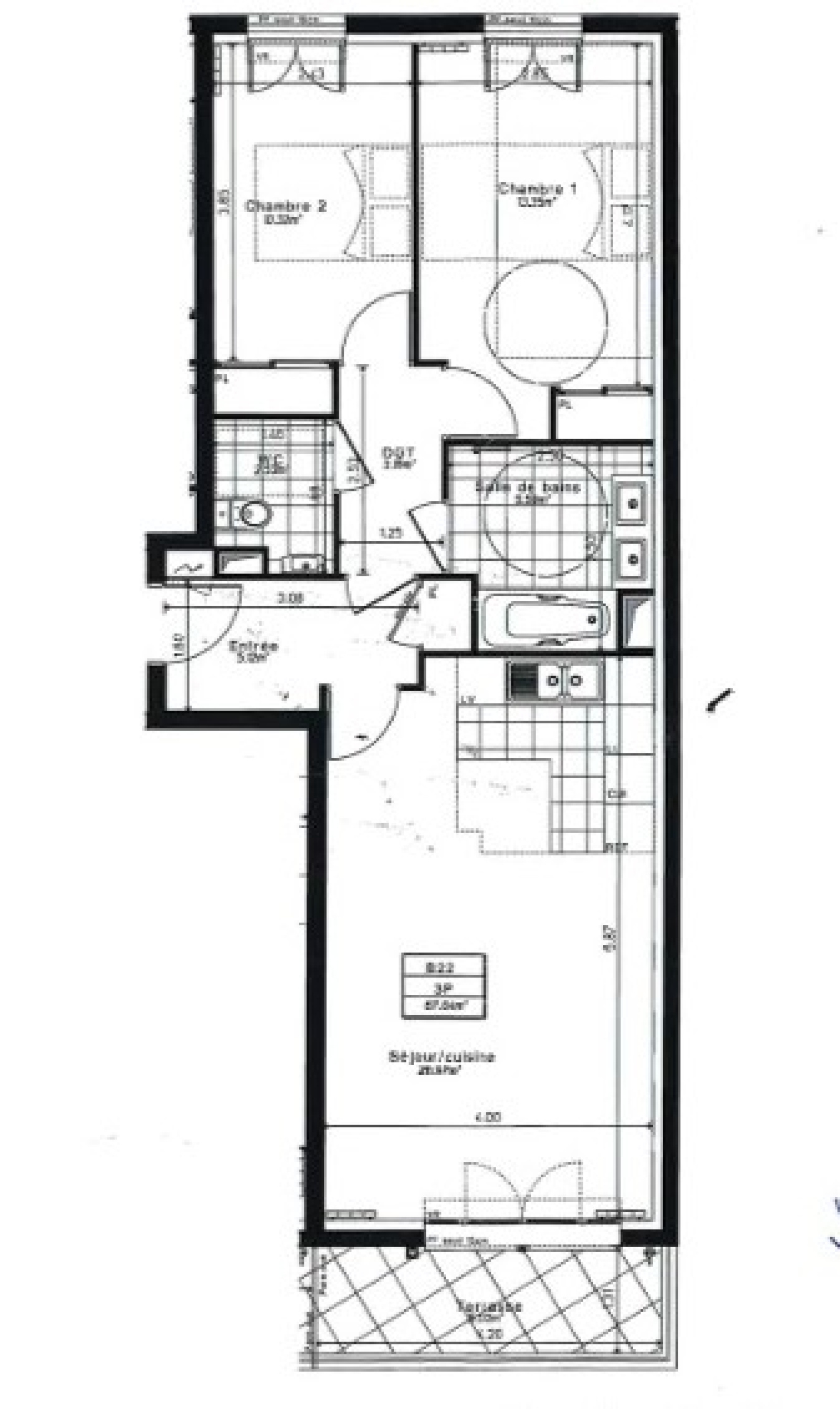
F3 avec terrasse , cave La Garenne-Colombes (92250)

Dans un immeuble de standing construit en 2019, l’Agence Marceau vous propose ce bel appartement parfaitement agencé de 3 pièces principales sur 67m² et sa terrasse au calme de 6.40m²

Il se compose d’une entrée avec placards, une pièce à vivre avec sa grande cuisine ouverte entièrement meublée et équipée (matériaux de qualités), une terrasse couverte, deux chambres avec placards (13.45m² et 10.40m²), une très belle salle d’eaux et enfin un WC séparé avec lave-mains. Au sous-sol, une cave complète le bien. Possibilité d'acquérir un parking au sous-sol en complément (16 000 €).

Découvrez le confort d'un appartement récent et l’agrément d’un immeuble basse consommation - Prêt à habiter - Prestations de qualité - Charges annuelles prévisionnelles : 2800 € (chauffage et eau chaude inclus). Taxe foncière 1370 € - Copropriété de 34 lots principaux. Pas de procédure en cours. Sous garantie décennal jusqu'en 2029.

  • Général
  • Détails +
  • Copropriété
  • DPE
  • Quartier
Caractérisque Valeurs
Code postal 92250
Surface habitable (m²) 67,01 m²
Surface loi Carrez (m²) 67,01 m²
Nombre de chambre(s) 2
Nombre de pièces 3
Etage 2
Nombre de niveaux 1
Ascenseur OUI
Caractérisque Valeurs
Nb de salle d'eau 1
Cuisine Américaine
Type de cuisine Equipée
Mode de chauffage Gaz
Type de chauffage Radiateur
Format de chauffage Central
Visiophone OUI
Terrasse OUI
Cave OUI
Surface cave (m²) 2
Exposition Nord-Sud
Année de construction 2019
Caractérisque Valeurs
Copropriété OUI
nombre de lots 34
Quote Part annuelle des charges 2 800 €
plan de sauvegarde NON
statut du syndic pas de procédure en cours
DPE GES
  • Commerces et santé
  • Loisirs
  • Ecoles
  • Transports
  • Pratique
Partager le bien
Nos outils
Imprimer Imprimer
Calculatrice financière

* Champ obligatoire

Partager l'annonce

* champs obligatoires

Les informations recueillies sur ce formulaire sont enregistrées dans un fichier informatisé par La Boite Immo agissant comme Sous-traitant du traitement pour la gestion de la clientèle/prospects de l'Agence / du Réseau qui reste Responsable du Traitement de vos Données personnelles. La base légale du traitement repose sur l'intérêt légitime de l'Agence / du Réseau. Elles sont conservées jusqu'à demande de suppression et sont destinées à l'Agence / au Réseau. Conformément à la loi « informatique et libertés », vous disposez des droits d’accès, de rectification, d’effacement, d’opposition, de limitation et de portabilité de vos données. Vous pouvez retirer votre consentement à tout moment en contactant directement l’Agence / Le Réseau. Consultez le site https://cnil.fr/fr pour plus d’informations sur vos droits. Si vous estimez, après avoir contacté l'Agence / le Réseau, que vos droits « Informatique et Libertés » ne sont pas respectés, vous pouvez adresser une réclamation à la CNIL. Nous vous informons de l’existence de la liste d'opposition au démarchage téléphonique « Bloctel », sur laquelle vous pouvez vous inscrire ici : https://www.bloctel.gouv.fr Dans le cadre de la protection des Données personnelles, nous vous invitons à ne pas inscrire de Données sensibles dans le champ de saisie libre.
Ce site est protégé par reCAPTCHA, les Politiques de Confidentialité et les Conditions d'Utilisation de Google s'appliquent.

Détail des diagnostics énergétiques
DPE GES
DPE ANCIENNE VERSION

Partager avec vos proches

Facebook Facebook
Messenger Messenger
Twitter Twitter
WhatsApp WhatsApp
LinkedIn LinkedIn
Copier le lien Copier le lien
Autres biens

Ces biens peuvent aussi vous intéresser

Appartement

F3 60m² + Cave

La Garenne-Colombes (92250)
Vendu
Voir le bien
Appartement

3 pièces de 63,74 m² au dernier étage à La Garenne Colombes...

La Garenne-Colombes (92250)
Vendu
Voir le bien
Contacter
l'agence

Remplissez ce formulaire, nous ferons de notre mieux pour vous répondre dans les meilleurs délais.

Agence Marceau Immobilier
01 55 70 22 60
E-mail agencemarceau@yahoo.fr

54 avenue Marceau 92400 Courbevoie

TRAD_MELTEM_voscoordonnees
TRAD_MELTEM_voredemande
Règlementation

* Champ obligatoire

Les informations recueillies sur ce formulaire sont enregistrées dans un fichier informatisé par La Boite Immo agissant comme Sous-traitant du traitement pour la gestion de la clientèle/prospects de l'Agence / du Réseau qui reste Responsable du Traitement de vos Données personnelles. La base légale du traitement repose sur l'intérêt légitime de l'Agence / du Réseau. Elles sont conservées jusqu'à demande de suppression et sont destinées à l'Agence / au Réseau. Conformément à la loi « informatique et libertés », vous disposez des droits d’accès, de rectification, d’effacement, d’opposition, de limitation et de portabilité de vos données. Vous pouvez retirer votre consentement à tout moment en contactant directement l’Agence / Le Réseau. Consultez le site https://cnil.fr/fr pour plus d’informations sur vos droits. Si vous estimez, après avoir contacté l'Agence / le Réseau, que vos droits « Informatique et Libertés » ne sont pas respectés, vous pouvez adresser une réclamation à la CNIL. Nous vous informons de l’existence de la liste d'opposition au démarchage téléphonique « Bloctel », sur laquelle vous pouvez vous inscrire ici : https://www.bloctel.gouv.fr Dans le cadre de la protection des Données personnelles, nous vous invitons à ne pas inscrire de Données sensibles dans le champ de saisie libre.
Ce site est protégé par reCAPTCHA, les Politiques de Confidentialité et les Conditions d'Utilisation de Google s'appliquent.

Se connecter
Espace propriétaire
Page d'accueil
Adhérents

© 2026 | Tous droits réservés | Traduction powered by Google |

  • Nos honoraires
  • Plan du site
  • Mentions légales
  • Admin
  • Nos liens
  • Politique RGPD

Comme beaucoup, notre site utilise les cookies

On aimerait vous accompagner pendant votre visite. En poursuivant, vous acceptez l'utilisation des cookies par ce site, afin de vous proposer des contenus adaptés et réaliser des statistiques !

Paramétrer

Cookies fonctionnelsCes cookies sont indispensables à la navigation sur le site, pour vous garantir un fonctionnement optimal. Ils ne peuvent donc pas être désactivés.

Statistiques de visitesPour améliorer votre expérience, on a besoin de savoir ce qui vous intéresse !
Les données récoltées sont anonymisées.

?

Google Analytics

En savoir plus